特斯拉的刹车竟能意外变“油门”?专家66页报告深挖真相


来源:界面新闻   时间:2020-11-19 17:39:56


原标题:特斯拉的刹车竟能意外变“油门”?专家66页报告深挖真相

文|车东西 James

编辑|晓寒

在电动汽车领域,特斯拉可谓是当红车型,从销量上看,特斯拉今年第三季度共交付汽车13.95万台,得到了美、中、欧三大汽车消费市场的高度认同。

特斯拉红遍全球为其带来了巨大的营销助力,但同时也放大了负面新闻,国内外多家媒体都曾报道特斯拉出现“意外加速”事故。

但特斯拉一直坚称,车没问题,驾驶员可能把油门当刹车踩了。

▲特斯拉官方对“意外加速”的回应▲特斯拉官方对“意外加速”的回应

一位在电子行业拥有40多年从业经历的美国工程师Ronald A. Belt博士自2011年从霍尼韦尔退休之后,一直在研究车辆的意外加速,先后发表十余篇报告,找到了丰田、三菱部分车型意外加速可能的原因。

近日,Belt博士针对特斯拉Model 3“意外加速”情况进行调查并形成了一篇长达66页的调查报告,得出特斯拉Model 3意外加速可能的原因。

在Belt博士的论文中,一共罗列了102起特斯拉“意外加速”造成的事故,其中70起在停车减速或低速转弯时发生,静止时发生有27起,高速路上发生共有5起。

这些事故都是因为驾驶员把油门当刹车了吗?带着这个疑问,Belt博士采集了车辆的EDR数据(Event Data Recorder,相当于车辆的黑匣子)、驾驶员证词、特斯拉的事故报告,发现了事故中的诸多矛盾之处,根据特斯拉的电机、制动系统的详细剖析,最终推测出停车减速或低速转弯时发生“意外加速”现象的可能原因。

不过,这一结论暂时没有得到特斯拉官方或其他机构的证实,但也为外界提供了一种分析这一现象的方法。

本文福利:Belt博士的66调查报告我们已经帮你下载好啦!公众号对话框回复【车东西0117】下载。

01.三种数据对不上号 特斯拉真的意外加速了?

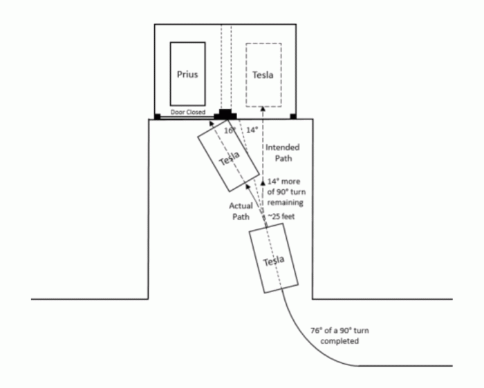
2019年,一位特斯拉Model 3驾驶员在进入车库前踩下刹车停车,等待车库门完全打开。但就在这时,她所驾驶的特斯拉Model 3突然启动,并向左行驶。虽然驾驶员再次踩下制动踏板,但最终车辆还是撞上两个车库之间的墙壁,造车车辆部分损坏。

这就是人们之前所看到的“意外加速”现象。

实际上,特斯拉“意外加速”现象不止这一次,无论在中国还是海外地区,都曾发生过类似事件。但特斯拉坚称,这不是车辆的问题,那么问题究竟在哪呢?

这辆特斯拉Model 3为2019年制造,发生事故时行驶还不到一年,为单电机后驱动力系统。整个事件发生过程中,这辆Model 3都处于标准驾驶模式下,且处于HOLD状态。

在调查过程中,当事驾驶员否认自己油门、制动踏板踩错导致车辆加速,加上特斯拉坚称没有问题,此时只有借助车辆的EDR数据说话(Event Data Recorder)。

EDR相当于是特斯拉的“黑匣子”,当系统检测到碰撞或类似碰撞的情况时,EDR会记录下车辆动力学与安全系统有关的数据,这些数据存储在车辆的限制控制模块(Restraints Control Module,即RCM)当中。

EDR数据可以由用户自行读取,满足一定条件就能从车中导出数据进行分析。

Ronald A. Belt就导出了涉事车辆的EDR数据,并进行了分析。

他收集了事故发生前5秒钟的车辆的加速踏板使用率(%)、后电机转速(RPM)、车辆速度(MPH)、横向加速度(g)、纵向加速度(g)、方向盘角度(deg)、横摆角速度(deg/s)、横滚角速度(deg/s), 并以这些数据,还原出了事故发生时车辆的行驶轨迹。

▲根据现场情况和EDR数据总结的车辆行驶轨迹▲根据现场情况和EDR数据总结的车辆行驶轨迹

在研究过程中,Belt博士发现了一个奇怪的现象,EDR数据和特斯拉官方发布的事故报告、当事驾驶员口述三者之间互相矛盾。

▲三方数据互相矛盾▲三方数据互相矛盾

1、碰撞前制动确定启用 但EDR数据恰好相反

具体来说,Belt首先发现,在碰撞前5秒的时间内,EDR数据显示加速踏板启动,在碰撞前1秒达到最大值,加速踏板大约踩下80%,电动机转速与车速的变化稍有延迟,电机转速在碰撞前0.8秒达到最大1700转/分,速度在碰撞前0.4秒达到最大14MPH(约合22.5km/h),意外加速前,驾驶员一直保持6MPH(约合9.6km/h)的速度前进。

▲碰撞前5秒的速度变化数据(来自EDR)▲碰撞前5秒的速度变化数据(来自EDR)

如果只看加速阶段,基本反映了事实,驾驶员感受到车辆加速,EDR数据也记录了车辆加速。

在减速阶段,车辆的加速度大约是4m/s2。此时,加速踏板显示使用率为0,且电机转速也逐渐降下降。车辆EDR数据中,纵向加速度数据证明了这一点。

▲事故发生前5秒车辆纵向加速度▲事故发生前5秒车辆纵向加速度

按照驾驶员的驾驶模式设置,车辆此时应该进行能量回收,车辆速度表现为减速,且能量回收时的加速度为0.2g(大约1.96m/s2),通过2018年10月的2018.42 v9软件更新后,能量回收的加速度提升至0.3g(大约2.94m/s2),皆低于车辆实际表现的加速度。

另外,事发地路面平坦,并非因为上坡或有其他障碍物造成车辆减速。同时,加速、制动踏板同时被踩下也不太可能,因为特斯拉的操作逻辑中制动等级更高,如果踏板同时踩下,制动优先介入。

由此推断,车辆在减速阶段,制动系统已经介入,EDR数据自相矛盾。

将时间倒推,在碰撞前4.4秒到碰撞前1.4秒间的3秒时间内,车辆都以6MPH(约合9.6km/h)的速度匀速行驶,且在此期间加速踏板的使用率始终为0(加速踏板踩下后,延迟0.2秒电机启动,延迟0.6秒速度变化)。

由此可以推断,在碰撞前4.4秒到碰撞前1.4秒,以及碰撞前0.2秒,在加速踏板未使用、车辆速度不为0的情况下,车辆能量回收系统没有工作。

2、ABS系统是否介入?EDR数据再次自相矛盾

从车辆横向运行数据来看,EDR数据也有自相矛盾之处。

根据方向盘角度变化数据,车辆加速开始后,方向盘向右最多旋转了76°,随后向左回正。

同时,EDR数据中的横摆角速度与方向盘转动基本重合。但是,在方向盘转动趋于平稳以及向左回正的过程中,横摆角速度仍在快速增加。这表明车辆出现了转向过度的状况,此时ABS系统应该介入。

一旦ABS系统介入,就会在转向较快外侧车轮采取主动制动措施,扭转转向过度的情况。

事实也是如此,当车辆突然加速前进,驾驶员向右转向避免撞墙,但车辆检测到向右转向过度,因此ABS介入,左前轮制动,驾驶员在车内感受到车辆向左转,最终撞向两个车库之间的墙壁。

由此推断,碰撞前ABS系统确实有介入车辆控制,这一点和特斯拉官方事故报告相同。但EDR数据显示,ABS系统未介入,与现象不符,还是自相矛盾。

基于以上事实和矛盾之处,Belt一共提出了8个问题:

1、为什么能量回收系统失灵?驾驶员自述在HOLD模式下且未踩下加速踏板,车辆为何会突然加速?

2、为什么在刹车踩下的同时,电机转速开始升高?

3、驾驶员踩下制动踏板,为什么车辆仍在加速?如果加速、制动踏板同时踩下时制动的优先级更高,是否意味着车辆确实存在意外加速?

4、EDR数据中,当加速踏板读数为0,为何电机仍在加速?

5、为什么驾驶员向右转向,车辆会向左偏移?

6、在驾驶员证词、特斯拉高精度日志数据都显示,驾驶员当时踩下了刹车,但为何EDR数据没有记录?

7、如果驾驶员没有踩下加速踏板,为何EDR数据会有加速踏板被踩下的记录?

8、加速度数据和特斯拉高精度日志数据都能证明当时ABS系统已经启用,为何EDR数据没有记录?

02.“意外加速”可能是错觉 但不会失控

要回答以上8个问题,就要搞清楚特斯拉的加速、制动系统究竟是如何运作的,首先是特斯拉的加速模式。

特斯拉设计了“单踏板驾驶模式”(即OPD,One Pedal Driving)。根据车辆的速度、加速踏板的使用率,仅用加速踏板就能让车辆加速、匀速滑行、减速停止,以此达到更加充分的能量回收。这样一来既节省了能源,又能延长续航。

▲特斯拉单踏板模式解读▲特斯拉单踏板模式解读

此时,车辆的制动踏板只有两种情况能用上:第一,让车辆完全停下来。第二,让车辆以0.3g以上的加速度紧急制动。

说到这里,其实大多数人应该都认为能量回收是个特别简单的过程,人们的感受也只有车辆在减速。

如果在平坦的柏油路上,情况可能确实如此。但在雨、雪、坡度较大的路段、颠簸路段,情况不太一样。

在雨雪天气条件下,路面变得湿滑,摩擦系数更小,表现为车辆容易打滑。当车辆在高速运行中,能量回收系统介入,以恒定加速度控制车辆。

这样一来,很可能车轮速度低于车辆速度,即车轮并非滚动前行,而是滑动前行,也就是出现了轮胎抱死。前轮抱死导致车辆失去转向,后轮抱死车辆会侧滑,非常危险。

特斯拉采用的车身稳定系统是博世的车身电子稳定系统ESP hev II,这是博世ESP 9.0 ABS调节器的特殊版本,专用于电动汽车。

从拆解图来看,博世ESP hev II包含12个电动电磁阀、2个液压泵、包含PID反馈控制和高功率驱动的晶体管、蓄电池、压力传感器、全局电子控制模组。

其作用共有两个:一是为前后轮分配正确的制动,二是提供车身稳定功能。

▲博世ESP hev II▲博世ESP hev II

车身稳定系统主要包括7个:ABS防抱死制动系统、DTC动态牵引力控制、DBC动态制动控制、AEB自动紧急制动、CBC转弯制动控制、ESC电子稳定控制系统、EDC发动机(电动机)阻力扭矩控制。

为前后轮分配正确的制动力这一过程稍显复杂,简单来说是这样的:

首先控制模组通过高速串行CAN总线接收来自智能助力器iBooster的指令,响应速度为1ms,确保紧急情况下不会有延迟。

从运行流程图中可以看到,智能助力器iBooster将电信号指令传输给博世ESP hev II(图中绿色线条),经过一系列的处理,就能将制动信号传递给每个车轮,实现制动。

▲博世ESP hev II运行流程图▲博世ESP hev II运行流程图

同时,除了驾驶员踩下踏板这一个操作之外,系统还允许关闭智能助力器iBooster液压缸的隔离阀,启动压力泵向车轮传递制动信号(图中红色线条),独立于制动踏板激活制动。

这里可以对日常行驶的特殊场景进行简单区分,在转弯、颠簸路段,为避免对车辆稳定系统造成干扰,车辆会主动关闭能量回收。在湿滑路面直线行驶时,如果车辆正在进行能量回收,车辆稳定系统会主动调节回收力度,向车轮施加正向扭矩。

1、转弯、颠簸路段能量回收主动关闭造成错觉

在日常行驶过程中,车辆进行较大转弯、颠簸行进的过程中,能量回收不会启用。如果车辆检测到轮胎可能出现抱死,也会关闭能量回收,车辆稳定系统对前后轮的扭矩重新分配,让车辆平稳前进。

也就是说,在能量回收突然消失时,人们会感受到从负向0.3g的加速度减小到0,会有“突然加速”的感觉,但此时车辆只是没有继续减速。

2、湿滑路段主动减弱或抵消能量回收造成错觉

通过博世ESP hev II,在其控制的后轮处就能产生必要的能量回收制动,与道路摩擦力混合,最大可以达到0.3g。

也就是说,如果在正常行驶过程中产生打滑的现象,车辆为取消能量回收让车身稳定系统介入,会让电机加速,以抵消能量回收产生的制动。

这里可以得出另一个结论,即便电机为控制制动产生一定的加速度,最大也就0.3g,此时车辆由减速变为匀速,车内乘员出现加速的错觉。

并且在以上两个现象中,如果驾驶员踩下刹车,车辆速度会降低,并不会出现踩下刹车后速度加快的现象。

这里还要说明,博世ESP hev II的算法由博世提供,出厂即写死,整车厂无法修改。

并且,这种能量回收取消时“突然加速”的错觉发生在所有使用博世ESP hev II的电动汽车上。

03.有种特殊情况:刹车=油门

前文得出的结论并不能还原整个事故,因此还需要进一步深入分析。

从车辆纵向加速度数据中可以发现有一段负向加速度,可以判断,此时发动机(电动机)阻力扭矩控制(EDC)被激活。

但是,EDC并不知道制动究竟是来自驾驶员踩下刹车还是能量回收。因此,EDC检查制动灯是否开启,判断车辆的制动来源。

Belt假设,在这起事件中,特斯拉Model 3的刹车灯开关可能出现了故障,当驾驶员踩下制动踏板产生0.5g的负向加速度时,制动灯开关并没有显示制动踏板被踩下。

此外,由于系统已经知道能量回收已经在转弯前消失,因此得出错误结论:电机应该产生正向0.5g的加速度平衡后轮扭矩。

更加危险的是,驾驶员踩下制动踏板越深,车辆产生的负向加速度越大,EDC判断需要平衡的加速度越大,相当于此时的刹车就是油门。

04.还原事故发生过程 解释三者数据为何自相矛盾

基于“刹车灯坏了”这一假设,我们基本能还原当天事故发生的全过程。

在进入车库前,车辆保持6MPH(约合9.6km/h)的速度前进,由于车辆正在转弯,博世ESP hev II将能量回收关闭。

在驾驶员向右转向时,车辆识别到车辆出现转向过度,导致博世ESP hev II的ESC电子稳定控制功能启用。此时,左前轮减速,随着后轮的加速,车辆向左偏移。

此时驾驶员意识到车辆实际转向不足,因此向右转向,并踩下制动踏板。

由于车辆刹车灯开关损坏,最终导致意外加速撞墙。

驾驶员证词、特斯拉日志都显示驾驶员确实踩下了刹车,但EDR数据没有显示,这恰好印证了假设:制动灯开关存在故障。

但是,还不能解释为何EDR数据显示加速踏板被踩下,另外也不能解释为何ABS没有启动。

1、加速踏板数据收集位置不恰当导致数据有误

根据此前的分析基本已经可以确定,驾驶员踩下了制动踏板,即便此时再踩下加速踏板,由于制动踏板权限更高,加速踏板也不会起作用。显然这里又出现了一个矛盾。

如果为整个事件画一个流程图就能发现,加速踏板数据获取可以在图中1、2两处进行。在1处进行时,驾驶员踩下踏板才会被记录,但是在2处进行则不相同,EDC传递正向扭矩信息,在此次事件中,采集的读数不是0。

▲整个事件的流程图▲整个事件的流程图

这也就能解释为什么EDR数据会有加速踏板被踩下的记录。

2、ABS指代不明确

EDR数据中的“ABS系统”系统实际上有两种理解方式,广义上讲,它指博世ESP hev II的所有功能,包括ABS、DTC、DBC等。狭义上来讲,它仅指代ABS一项功能。

如果EDR数据中“ABS系统”仅指代ABS一项功能,在整个事件过程中,由于ABS未启用,因此EDR数据是正确的。但是,在整个事件发生过程中博世ESP hev II中有三个模块功能确定被激活。

需要说明的是,以上8个问题的推理基于同一个假设:刹车灯开关缺陷。因为开关出现问题,博世ESP hev II中的EDC作出错误判断,导致电动机产生正向扭矩,最后车辆加速前进。

这一假设得到两个观点的支持:第一,驾驶员证词、特斯拉的调查报告都显示,驾驶员踩下了踏板,EDR数据恰好相反。第二,在过去的十年中,确实有不少汽车制造商因为刹车灯开关的缺陷召回车辆。

回到最初的102起特斯拉意外加速事故的记录,在停车减速或转弯离开车位时发生的事故共有70起,其实都能用前文的分析来解释,这些意外加速事故的占比达到70%。

而另外30%的意外加速可能还需要进一步研究。

05.统计结果:其他车辆也有类似情况

既然特斯拉意外加速和博世ESP以及刹车灯可能有一定关系,那么使用博世智能助力器iBooster的其他车型有没有出现这样的情况呢?

从统计结果来看,全球电动汽车基本都采用了带有博世ESP hev II与智能助力器iBooster制动模块,与特斯拉所使用的制动模块完全相同。

▲全球主要汽车制造商电动车制动组件供应商一览▲全球主要汽车制造商电动车制动组件供应商一览

统计结果是令人震惊的。只有后轮驱动的电动汽车、前轮驱动的混动汽车出现过意外加速,而前轮驱动的纯电动车没有发生过意外加速。

并且,其中前轮驱动的混动汽车可以证明其燃油发动机导致意外加速,与制动系统无关。

Belt博士得出结论:电动汽车都有可能出现意外加速的现象,以下三个前提同时满足会让意外加速概率更高:采用了博世的制动系统、采用后轮驱动或全轮驱动且制动灯开关有缺陷。

从宝马i3的一次事故中也能证明这一点。

2019年8月,一辆宝马i3在美国檀香山的Kiamuki购物中心停车时突然加速撞进了墙内。

▲2019年8月宝马i3意外加速事故▲2019年8月宝马i3意外加速事故

这辆宝马i3的三电系统与特斯拉完全不同,但二者采用了相同的博世制动系统。这起事故在一定程度上也能证明意外加速和博世ESP hev II可能存在关联,同时两款车的刹车灯可能也存在缺陷。

  版权及免责声明:凡本网所属版权作品,转载时须获得授权并注明来源“融道中国”,违者本网将保留追究其相关法律责任的权力。凡转载文章,不代表本网观点和立场。

延伸阅读

最新文章

马斯克V.S薛其坤:立足当下 对人类未来展开无限想象 马斯克V.S薛其坤:立足当下 对人类未来展开无限想象

精彩推荐

图文观赏

众安在线扭亏为盈:2020年净利5.5亿 数字生活生态驱动增长 众安在线扭亏为盈:2020年净利5.5亿 数字生活生态驱动增长

热门推荐